ONE GIRL COOKIES* | INDUSTRY CITY, BROOKLYN, NY

Cafe on a busy day in Industry City

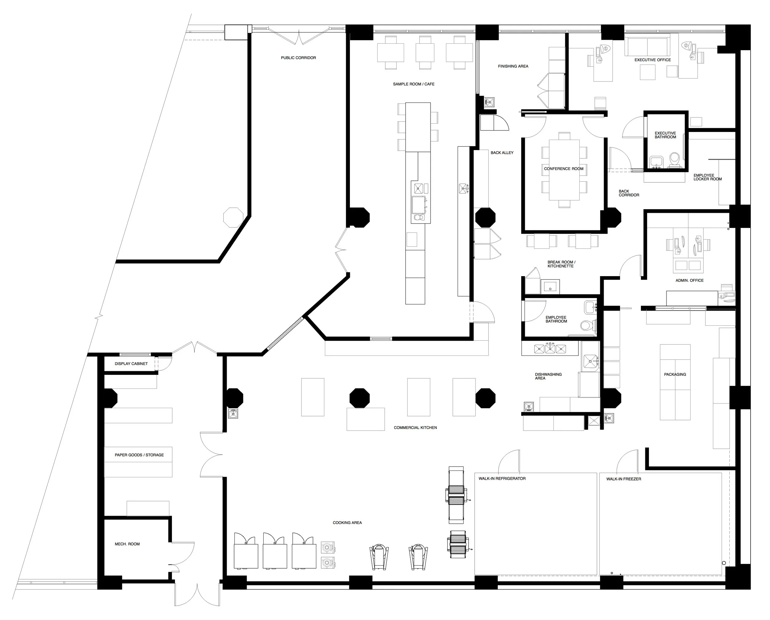
One Girl Cookies has built a small Brooklyn empire with their delicious baked confections. Whoopie Pies, macaroons, and out-of-this-world cakes built a customer base that led OGC to outgrow the small kitchen in the back of their first cafe space. After working with Shadow Architects to launch their DUMBO location, the owners of the One Girl Cookies chain sought to design their new production facilities in Brooklyn’s Industry City. As part of the complex’s requirements for food production + café, the new design incorporates a foodie’s dream: intentional framed views from the sunlit booth, iced coffee in hand, into the baking process and cake decorating areas.

The full build-out not only had to serve as 4,000+ sq.ft. kitchen and decoration space to supply the online store and three cafe locations, but also had to serve as the new headquarters of the operation; with new conference room space, executive suite, order fulfillment and marketing facilities. The space planning to designate the private and public areas in the raw space was essential in planning the flow of customers and bakers in concert with each other. 

Cafe space

Window behind the scenes

Cake decorating station

View into cafe and production space from building corridor

Cafe bake-case + POS station

The team* worked with Oliver Freundlich Design to facilitate their interior design of the café while specifically overseeing the building department, facilities and other consultants to bring this Brooklyn favorite to a new location.

LOCATION: Industry City, Brooklyn, NY
ARCHITECT: Shadow Architect, P.C.
INTERIOR DESIGN: Oliver Freundlich Design, LLC
PHOTOS: Dana Gallagher

Floor Plan

The owners enjoying a quiet moment in the daylight-filled cafe

*indicates work done by Shadow Architect, P.C. with Aaron as part of the design team

BACK